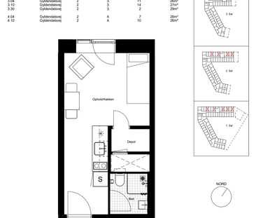
2-vær. lejlighed

Svanevej **, st. lejl. 118, 2400 København NV

  • Lejlighed
  • |
  • 49 m²
  • |
  • 2 Værelser
  • |
  • 1 måned siden

Sidste scanning: 11 timer siden info

Ikon for daglige visninger1 visninger de sidste 24 timer

Stil et spørgsmål

Om denne lejebolig

Tilmeld dig for at se alle billeder og detaljer for denne lejebolig
Tilmeld dig nu

Velkommen til dit nye byferiested på Svanevej 19, st. lejl. 118, 2400 København NV! Denne moderne 2-værelses lejlighed tilbyder et stilfuldt og hyggeligt opholdsrum. Det åbne koncept er perfekt til at underholde, og det slanke køkken er udstyret med de bedste hårde hvidevarer. Med sin førsteklasses beliggenhed vil du være kun få skridt væk fra byens bedste restauranter, butikker og underholdningssteder. Til en overkommelig pris på 13.000 kr er denne lejlighed en fantastisk mulighed for at nyde byens liv, når det er bedst. Gå ikke glip af det - planlæg en fremvisning i dag!


Om lejeboligen
Boligtype
Størrelse
49 m²
Værelser
2
Kæledyr tilladt
Ja
Kun studerende Ikon for spørgsmål
Ja
Parkering Ikon for spørgsmål
Ja

Lejeoplysninger
Månedlig leje
13.000 kr
Forbrug
500 kr
Depositum
39.000 kr
Forudbetalt leje
39.000 kr
Lejeperiode
-
Ledig fra
1. feb 2026

Har du bemærket en fejl i annoncen?
Hjælp os med at gøre Rentumo bedre - rapporter forkert information, så tager vi os af det.
Rapporter et problem

Ofte Stillede Spørgsmål

Få ubegrænset adgang til alle detaljer om alle søgeresultater på Rentumo med et premium-medlemskab. Klik her for at tilmelde dig Rentumo Premium.

Du søger måske på 1-5 forskellige hjemmesider for lejeboliger. Men vi søger mere end 350 for dig. Vi finder over 200 nye boliger hver dag. Du modtager notifikationer hver time med nye relevante annoncer. Du kan derfor spare flere timers søgning hver dag ved at bruge Rentumo.

Tilmeld dig en SøgeAgent og modtag meddelelser, så får du lynhurtigt besked, når nye boliger bliver tilgængelige på markedet. Klik her for at tilmelde dig GRATIS.

Denne annonce er fundet på en anden hjemmeside, da vi gennemsøger 200 hjemmesider, for at samle alle lejeboliger i én søgning for dig. Vi gør med andre ord alt arbejdet for dig.

Insister altid på at møde udlejere personligt, før du foretager nogle indbetalinger. Hvis en udlejer beder om et depositum, før du har set ejendommen, skal du betragte det som et rødt flag. Sørg for at bestille en fremvisning, mødes personligt og få en underskrevet kontrakt, før du fortsætter med nogle betalinger.

Hvis boligen allerede er udlejet, har en forkert adresse eller lignende - rapporter det venligst her.

Vi scanner 196 hjemmesider dagligt, finder hundredvis af nye annoncer dagligt, for at sende dig nye matches.

Hvis der er et problem, vil vi hurtigt gennemgå det - og du kan være berettiget til en refundering.

Rapportér fejl i annoncen her.

Placering Alle lejligheder til leje i København NV
203 lignende lejeboliger
Se alle 203 lignende resultater

Har du ikke fundet et nyt hjem endnu?

  • Opret en gratis søgeagent
  • +100 nye boliger dagligt
  • 7 ud af 10 personer, der fandt et nyt hjem, benyttede vores søgeagent
  • Dine søgekriterier

København NV
13.000 kr/måned, min. 2 værelser

Månedlig leje
13.000 kr
Kontakt
Logo Close
Hjem-ikon