Prøv at inkludere så mange detaljer som muligt.
Er du interesseret i denne lejebolig? Kontakt i stedet udlejeren.
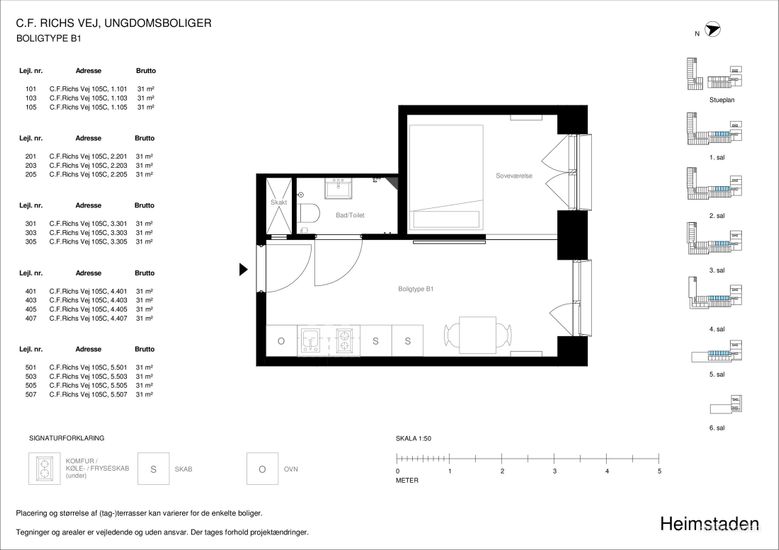
2 værelser
-
Hus
31 m²
Kopieret