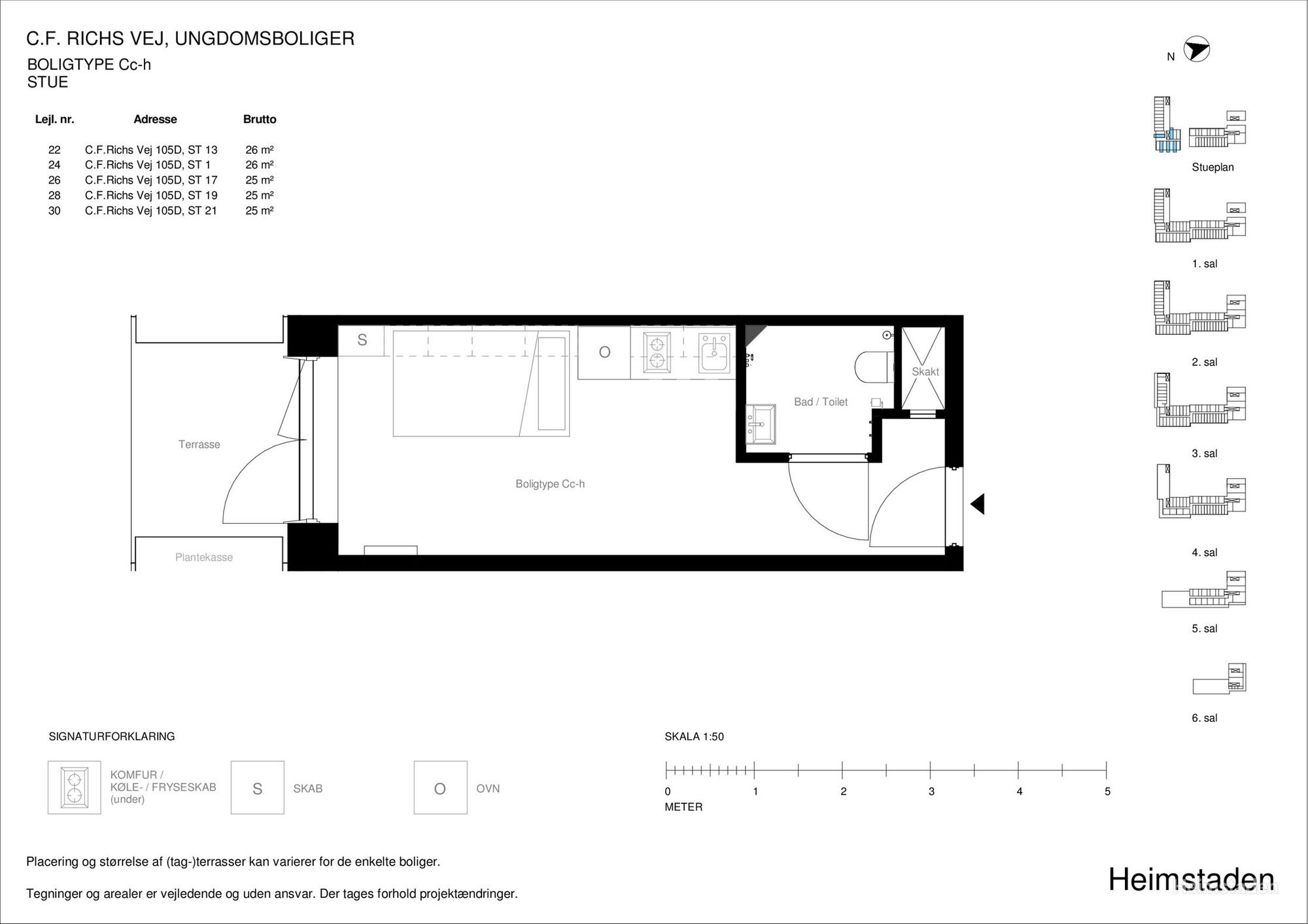
C.F. Richs Vej 105D, st. 19, 2000 Frederiksberg

C.F. Richs Vej 105D, st. 19, 2000 Frederiksberg

  • Hus
  • |
  • 25 m²
  • |
  • 1 værelse
  • |
  • 17 timer siden

Sidste scanning: 12 timer siden info

Ikon for daglige visninger1 visninger de sidste 24 timer

Stil et spørgsmål

Om denne lejebolig

Tilmeld dig for at se alle billeder og detaljer for denne lejebolig
Tilmeld dig nu

Velkommen til din nye forstadsoase på C.F. Richs Vej 105D, st. 19, 2000 Frederiksberg! Dette charmerende 1-værelses hus tilbyder et rummeligt og indbydende miljø. Den store baghave er perfekt til udendørs sammenkomster, og det hyggelige interiør giver et behageligt tilbagetog. Beliggende i et familievenligt kvarter, har du adgang til parker, skoler og lokale faciliteter. Til en overkommelig pris på 9.100 kr er dette hus ideelt for dem, der søger en fredelig forstadslivsstil. Planlæg en fremvisning i dag for at opleve den varme og komfort, dette hus har at tilbyde.


Om lejeboligen
Boligtype
Hus
Størrelse
25 m²
Værelser
1
Etage Ikon for spørgsmål
19
Møbleret Ikon for spørgsmål
Nej
Kæledyr tilladt Ikon for spørgsmål
Nej
Elevator
Ja
Seniorvenlig Ikon for spørgsmål
Nej
Kun studerende Ikon for spørgsmål
Ja
Altan Ikon for spørgsmål
Ja
Parkering
Ja
Byggeår
2017

Lejeoplysninger
Månedlig leje
9.100 kr
Forbrug
380 kr
Depositum
27.300 kr
Forudbetalt leje
9.100 kr
Lejeperiode
-
Ledig fra
13. feb 2026

Har du bemærket en fejl i annoncen?
Hjælp os med at gøre Rentumo bedre - rapporter forkert information, så tager vi os af det.
Rapporter et problem

Ofte Stillede Spørgsmål

Få ubegrænset adgang til alle detaljer om alle søgeresultater på Rentumo med et premium-medlemskab. Klik her for at tilmelde dig Rentumo Premium.

Du søger måske på 1-5 forskellige hjemmesider for lejeboliger. Men vi søger mere end 350 for dig. Vi finder over 200 nye boliger hver dag. Du modtager notifikationer hver time med nye relevante annoncer. Du kan derfor spare flere timers søgning hver dag ved at bruge Rentumo.

Tilmeld dig en SøgeAgent og modtag meddelelser, så får du lynhurtigt besked, når nye boliger bliver tilgængelige på markedet. Klik her for at tilmelde dig GRATIS.

Denne annonce er fundet på en anden hjemmeside, da vi gennemsøger 200 hjemmesider, for at samle alle lejeboliger i én søgning for dig. Vi gør med andre ord alt arbejdet for dig.

Insister altid på at møde udlejere personligt, før du foretager nogle indbetalinger. Hvis en udlejer beder om et depositum, før du har set ejendommen, skal du betragte det som et rødt flag. Sørg for at bestille en fremvisning, mødes personligt og få en underskrevet kontrakt, før du fortsætter med nogle betalinger.

Hvis boligen allerede er udlejet, har en forkert adresse eller lignende - rapporter det venligst her.

Vi scanner 204 hjemmesider dagligt, finder hundredvis af nye annoncer dagligt, for at sende dig nye matches.

Hvis der er et problem, vil vi hurtigt gennemgå det - og du kan være berettiget til en refundering.

Rapportér fejl i annoncen her.

Placering Alle huse til leje i Frederiksberg

Har du ikke fundet et nyt hjem endnu?

  • Opret en gratis søgeagent
  • +100 nye boliger dagligt
  • 7 ud af 10 personer, der fandt et nyt hjem, benyttede vores søgeagent
  • Dine søgekriterier

Frederiksberg
10.000 kr/måned, min. 1 værelse

Månedlig leje
9.100 kr
Kontakt
Logo Close
Hjem-ikon