Prøv at inkludere så mange detaljer som muligt.
Er du interesseret i denne lejebolig? Kontakt i stedet udlejeren.
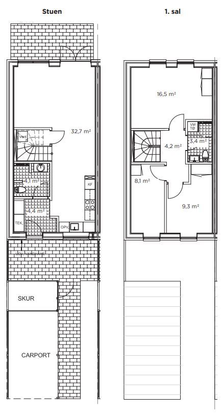
4 værelser
-
Rækkehus
112 m²
Kopieret